Prédio com projeto aprovado para um Boutique Hotel de 4*, localizado numa das zonas mais icónicas do centro de Lisboa.
Localizado no Rossio, na Praça Dom Pedro IV, este prédio está rodeado de história e cultura, constituindo em si uma fantástica oportunidade de investimento e rentabilidade.
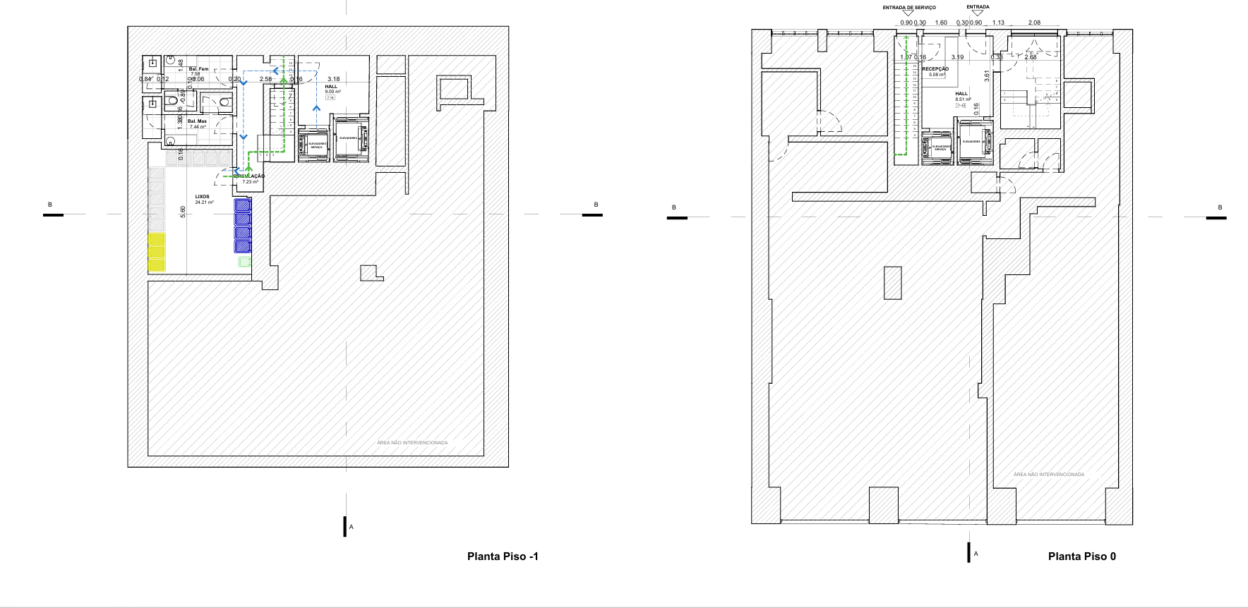
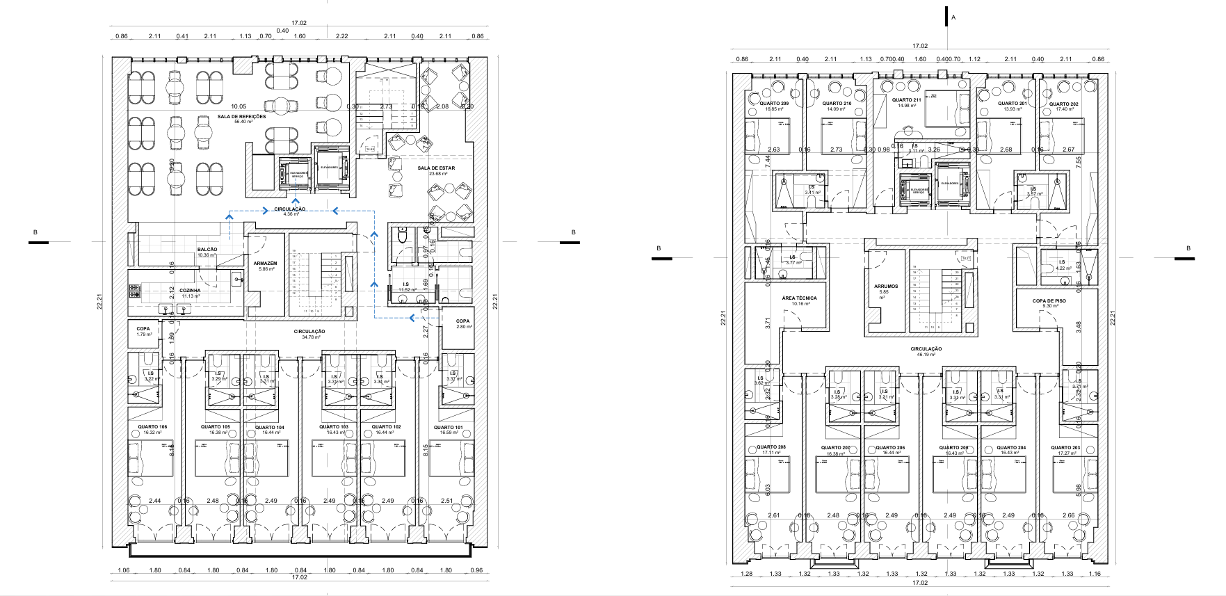
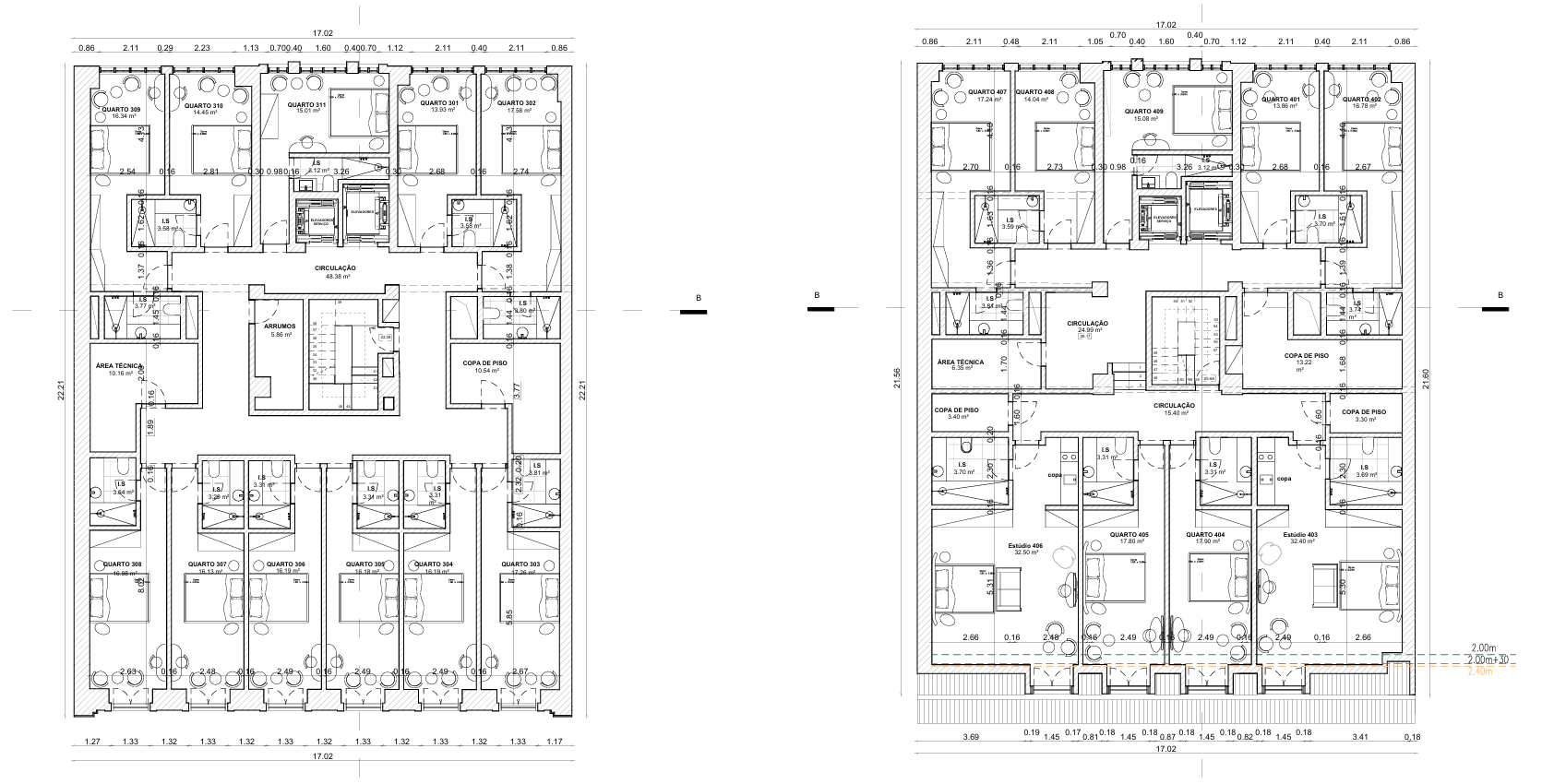
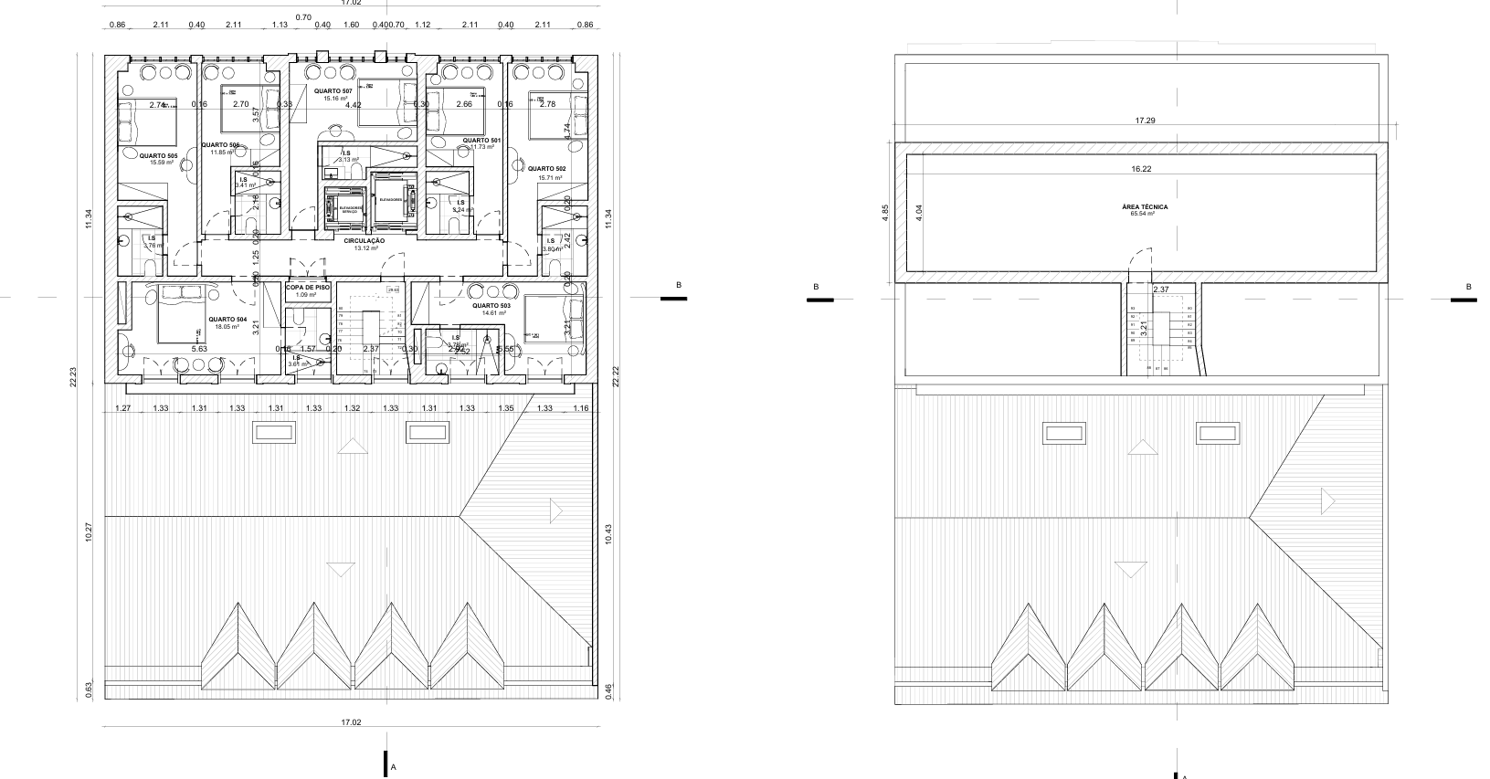
Projeto aprovado para a construção de um Boutique Hotel de 4 estrelas com capacidade para 84 camas e 44 unidades, distribuídas por 2 apartamentos e 42 quartos, dos quais 38 quartos duplos e 4 quartos single.
A poucos passos do Teatro Nacional D. Maria II, Avenida da Liberdade, Praça do Comércio, Largo do Chiado e Bairro Alto, esta zona é alvo de uma elevada e constante procura, constatando-se um marcante fluxo turístico durante todo o ano e uma envolvente de elevado valor patrimonial.
Oportunidade ideal para investidores que valorizam localização, autenticidade e potencial de valorização.

Prédio com projeto aprovado
Mais alguma informação?
Marque uma visita ou peça mais informações.
Ref.
SP-100335
Localidade
Lisboa
Área Bruta de Construção
1808 m2
Área Bruta Privativa
1808 m2
Mapa de Acabamentos
Sobre Lisboa
O mundo passa por Lisboa. Séculos e séculos de história contribuíram para construir uma cidade com uma identidade única, fazendo de Lisboa hoje uma capital com um estilo de vida moderno e europeu.
Desde os bairros antigos, à Baixa Pombalina e às Avenidas Novas, Lisboa é uma cidade aberta a todos e em constante crescimento. É uma cidade repleta de cultura, tecnologia e diversidade gastronómica, que acolhe eventos e congressos nacionais e internacionais, encontros corporativos e festivais de música, atraindo pessoas de todo o mundo.
Lisboa oferece uma oferta exclusiva de lojas internacionais, com destaque para a Avenida da Liberdade, com a representação de marcas como Louis Vuitton, Carolina Herrera, Burberry e Cartier. Com os seus conceituados centros empresariais, universidades, teatros e museus, Lisboa tornou-se uma cidade em constante desenvolvimento económico, social e cultural, pronta para receber nómadas digitais, investidores e famílias de todo o mundo que procuram uma qualidade de vida superior num ambiente tranquilo e multicultural.








